Let Agreed

YOUR BUSINESS NAME OVER THE DOOR (OFFICE), Ferndown


£1,525 Monthly

  • SELF CONTAINED OFFICE
  • PARKING
  • EXCELLENT LOCATION
  • CLASS E PLANNING PERMISSION
  • BEAUTIFUL RECEPTION AREA
  • TWO TOILETS
  • MEETING AREA
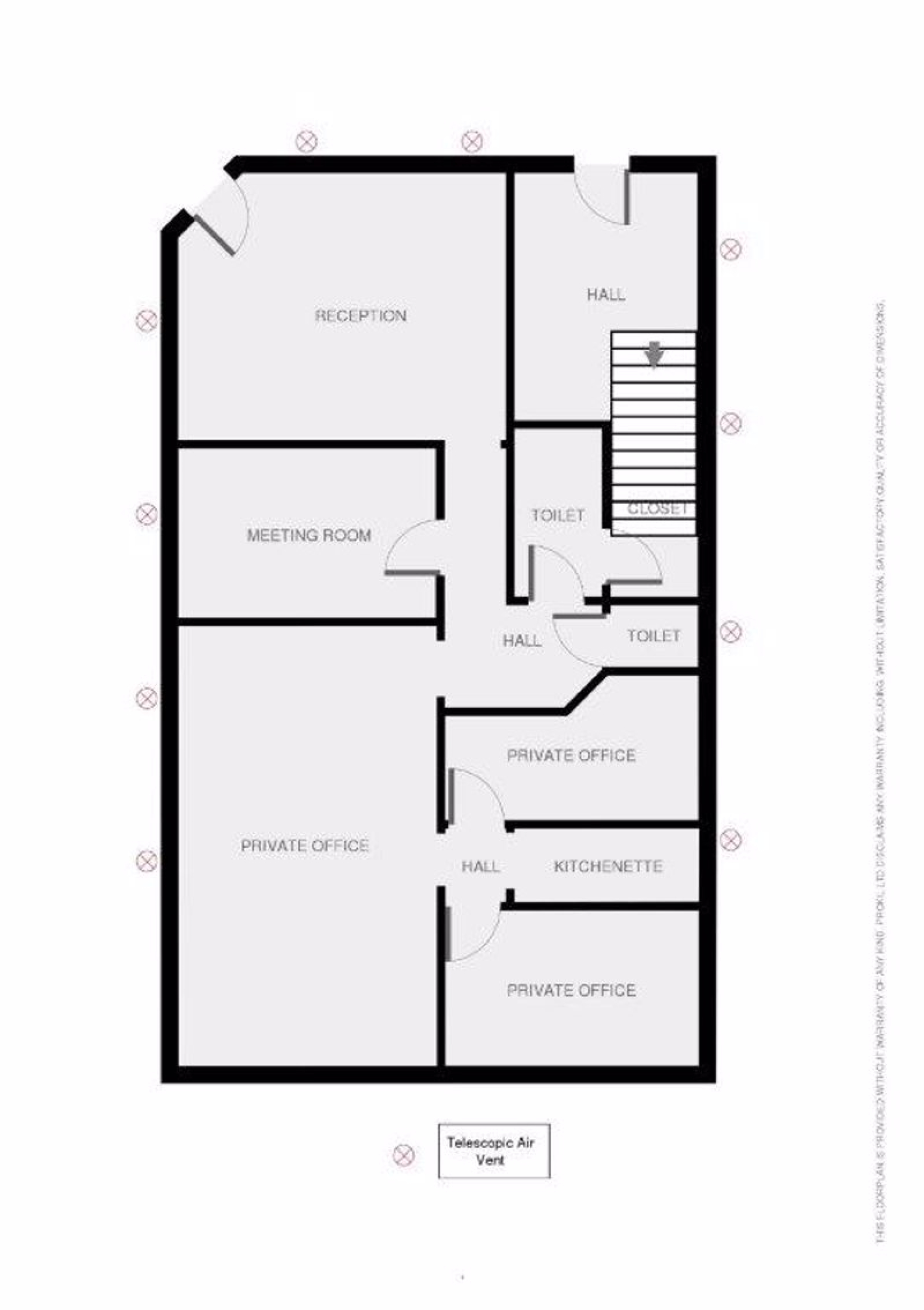
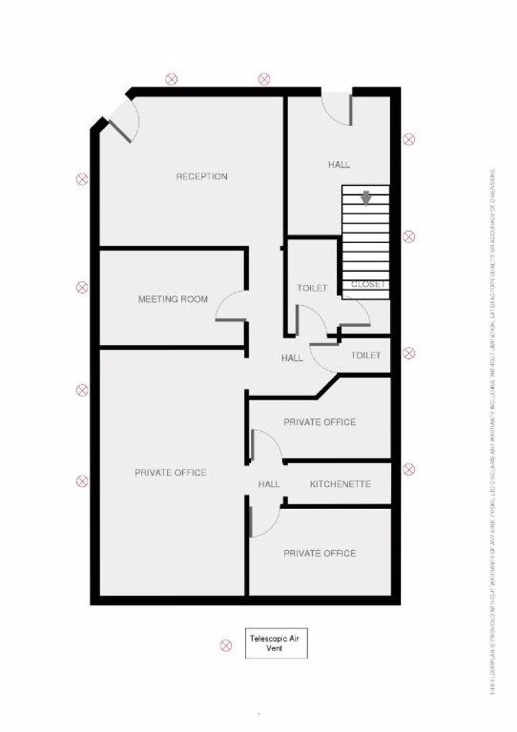
  • C 900 sq ft / 83.6 sq m IN TOTAL

PUT YOUR NAME OVER THE DOOR on this PROMINENTLY POSITIONED PROPERTY

Situated on a busy main road between Ferndown and Wimborne, this is an excellent opportunity to occupy a small, self-contained office suite with parking.

Individual freestanding building with CLASS E planning permission.

CLASS E, includes OFFICE, VET, SHOP, Financial and Professional Services, Restaurant and Café (but not takeaway), light industrial and research uses, most indoor sport, recreation or fitness activities, medical and heath services, a creche, day nursery or day centre.

Beautiful Reception area with shiny black tiled floor, styling reception desk (which you can coordinate with your company colours), meeting room, 2 toilets, kitchen area, large open plan office with double doors onto the garden, smaller office with double doors onto the garden, further office area. C 900 sq ft / 83.6 sq m in total.

Parking for 4 cars (but could be increased)

Garden


Benefits from Small Business Rate Relief
CAT 5 cables installed
Alarm in place (cost of alarm shared 50:50 with Landlord)
Gas Central Heating
Loading...
Loading...

Floorplan for Wimborne Road East

Can't find what you are looking for?


Our helpful team are on hand to answer any queries and concerns you may have.


Get in Touch

This website uses cookies. We use cookies to provide social media features and to analyse our traffic.
You consent to our cookies if you continue to use our website. Read our cookie policy. I understand